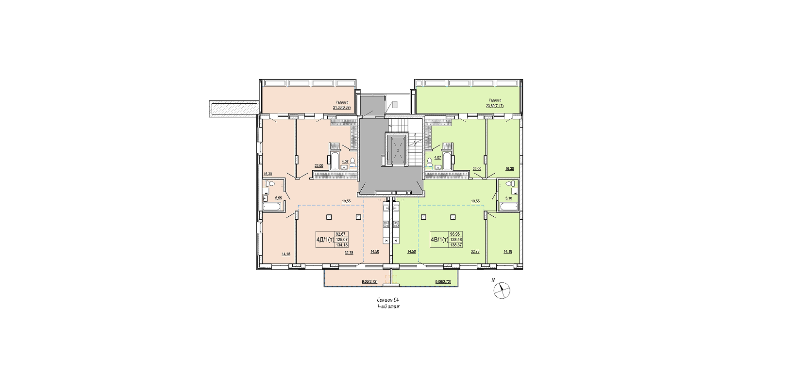
Нововиленская ул. д. 12.1 по ГП, ЖК "Левада", 4 секция, 1 этаж