-
ЖК "Чайка" (г. Брест)

ЖК "Чайка" Октябрьской Революции ул., д. №3.2 по ГП, г.Брест, застройщик ООО "АйронИнвестПроект"

Ближайший срок сдачи -
Поделиться

Процент строительной готовности дома на 01.04.2026г. - 25%

Характеристики дома

План 1-го этажа

План 1-го этажа

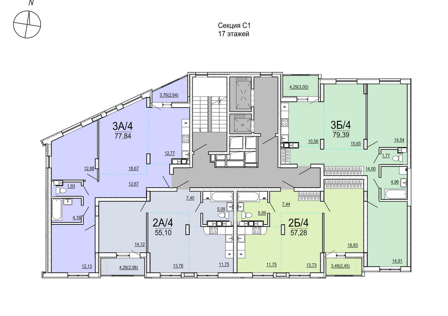
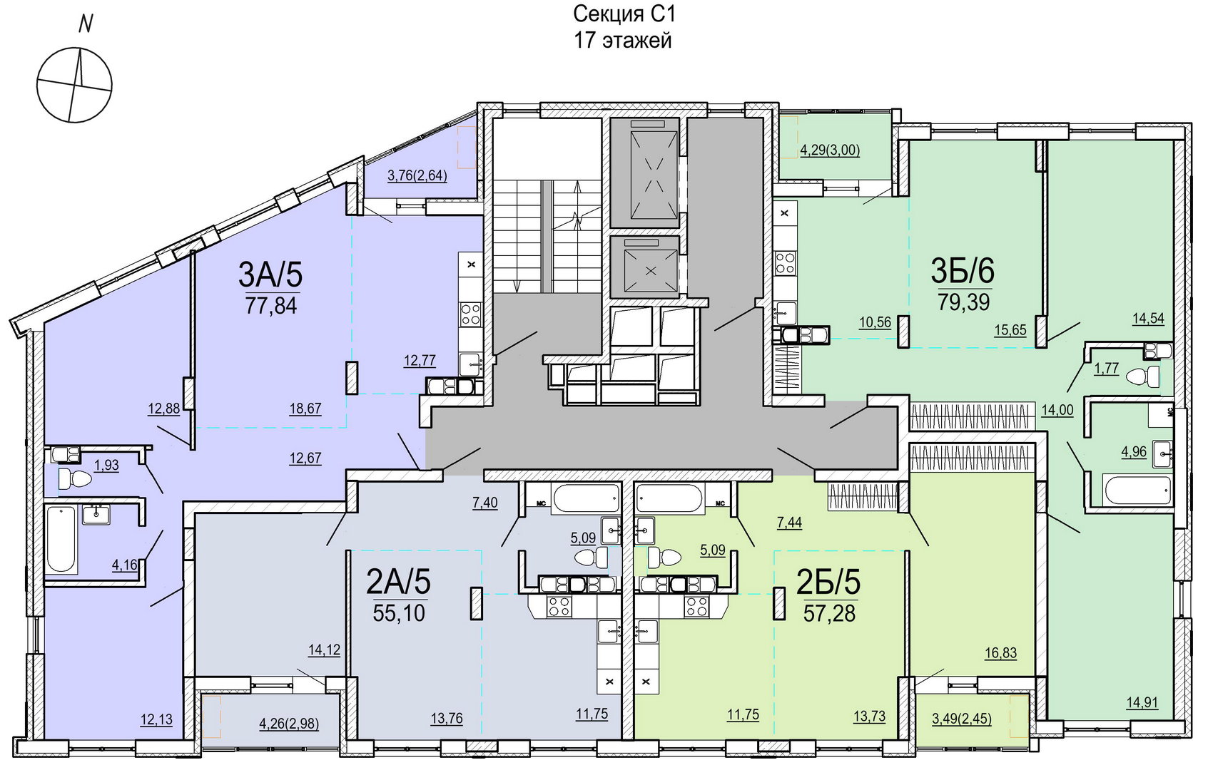
Секция 1
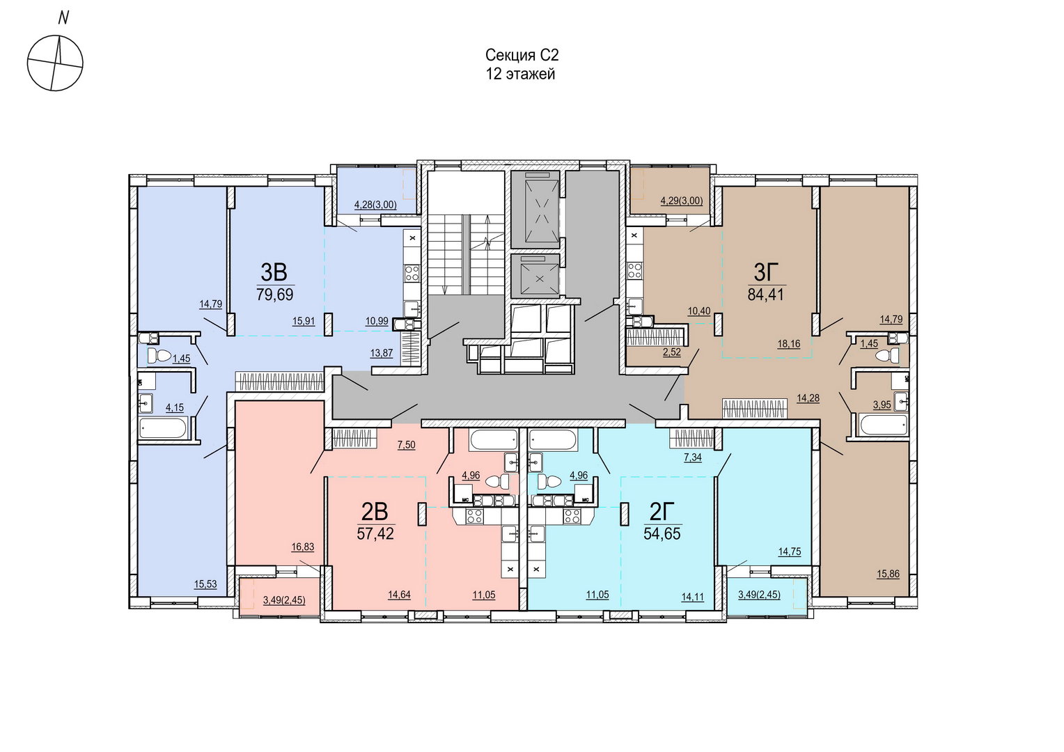
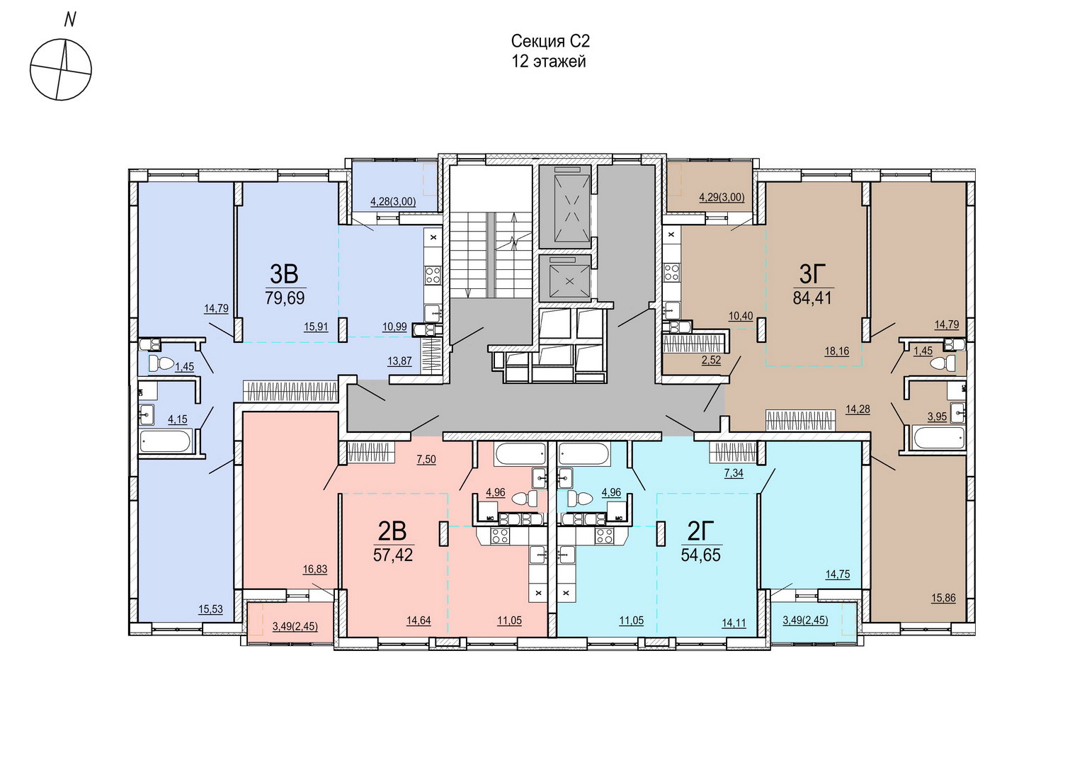
Секция 2
Секция 3
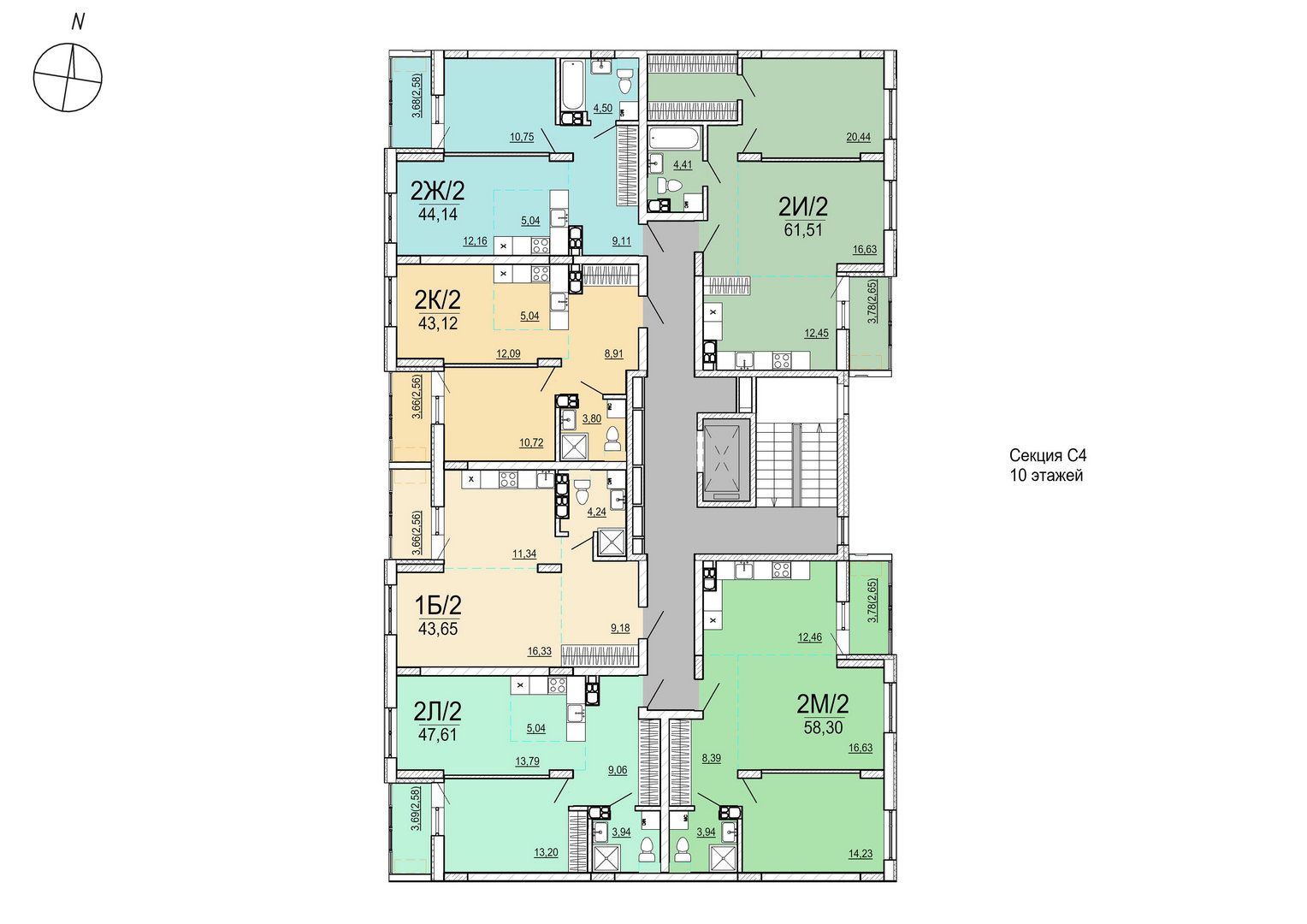
Секция 4
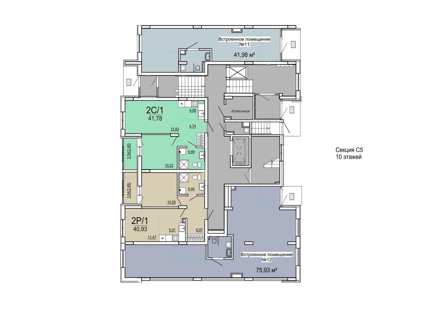
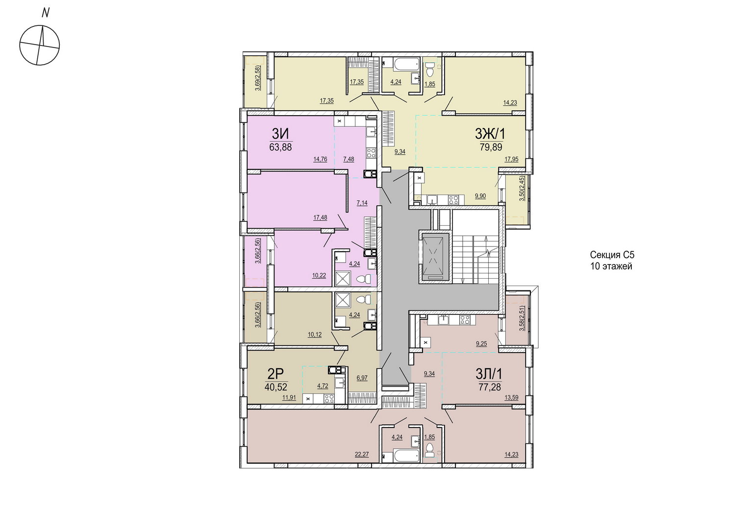
Секция 5
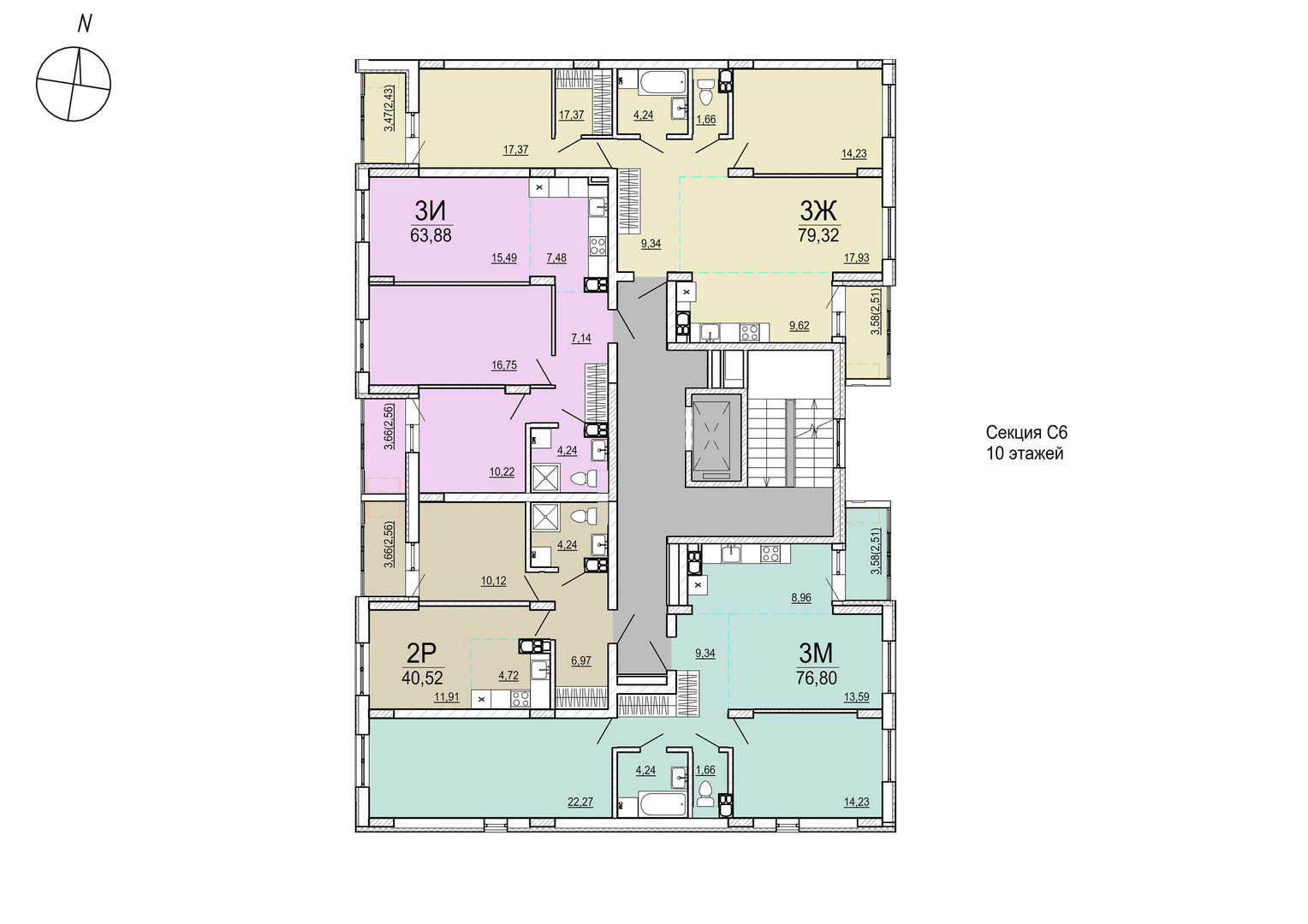
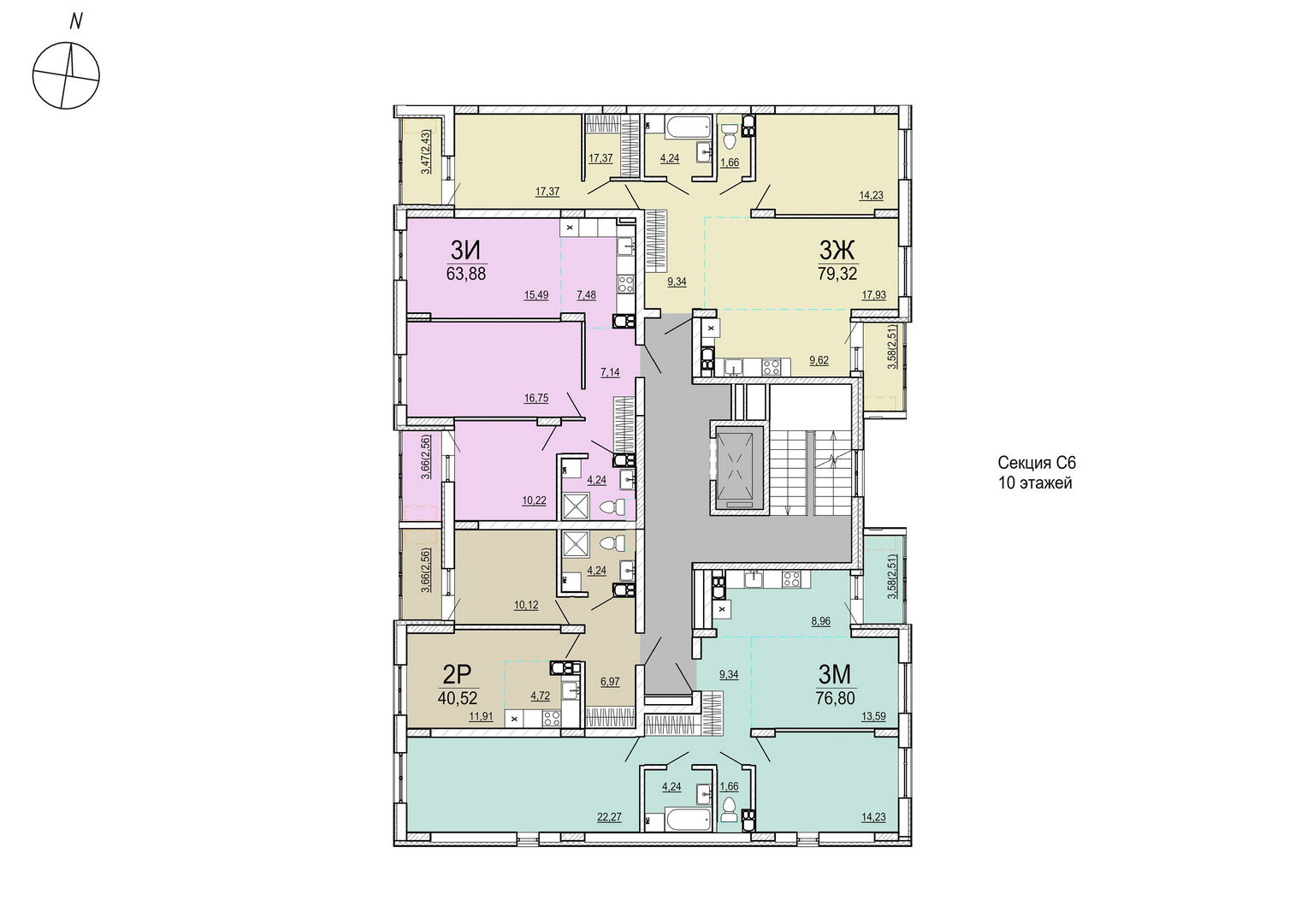
Секция 6

План 2-го этажа

План 2-го этажа

Секция 4
Секция 6
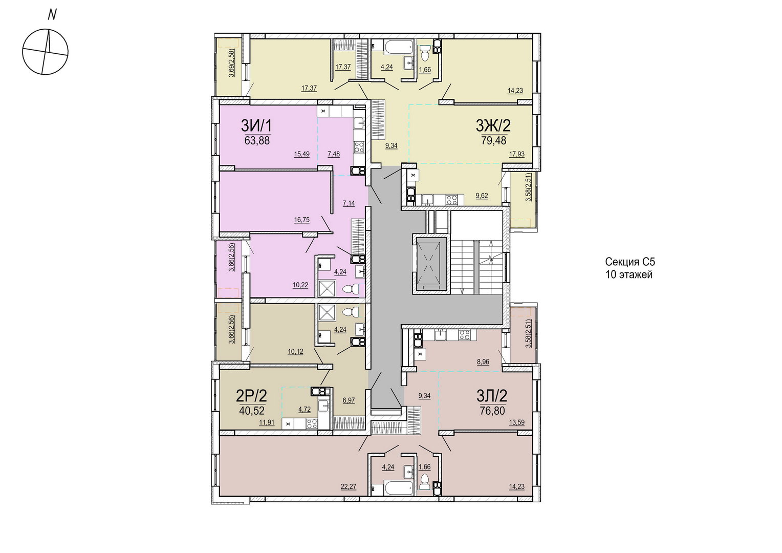
Секция 5
Секция 3
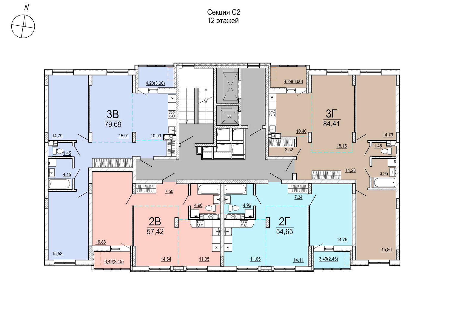
Секция 2
Секция 1

План 3-4-го этажа

План 3-4-го этажа

Секция 1
Секция 2
Секция 3
Секция 4
Секция 5
Секция 6

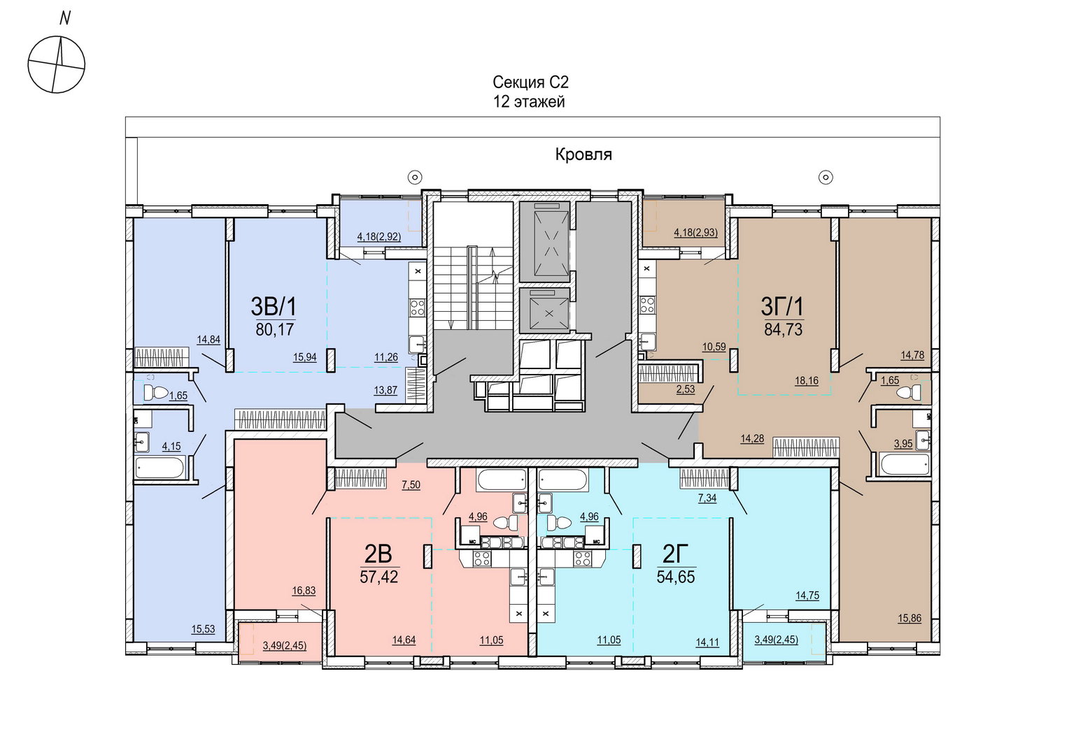
План 5-6-го этажа

План 5-6-го этажа

Секция 3
Секция 1
Секция 2
Секция 4
Секция 5
Секция 6

План 7-9-го этажа

План 7-9-го этажа

Секция 1
Секция 2
Секция 3
Секция 4
Секция 5
Секция 6

План 10-го этажа

План 10-го этажа

Секция 1
Секция 6
Секция 5
Секция 4
Секция 3
Секция 2

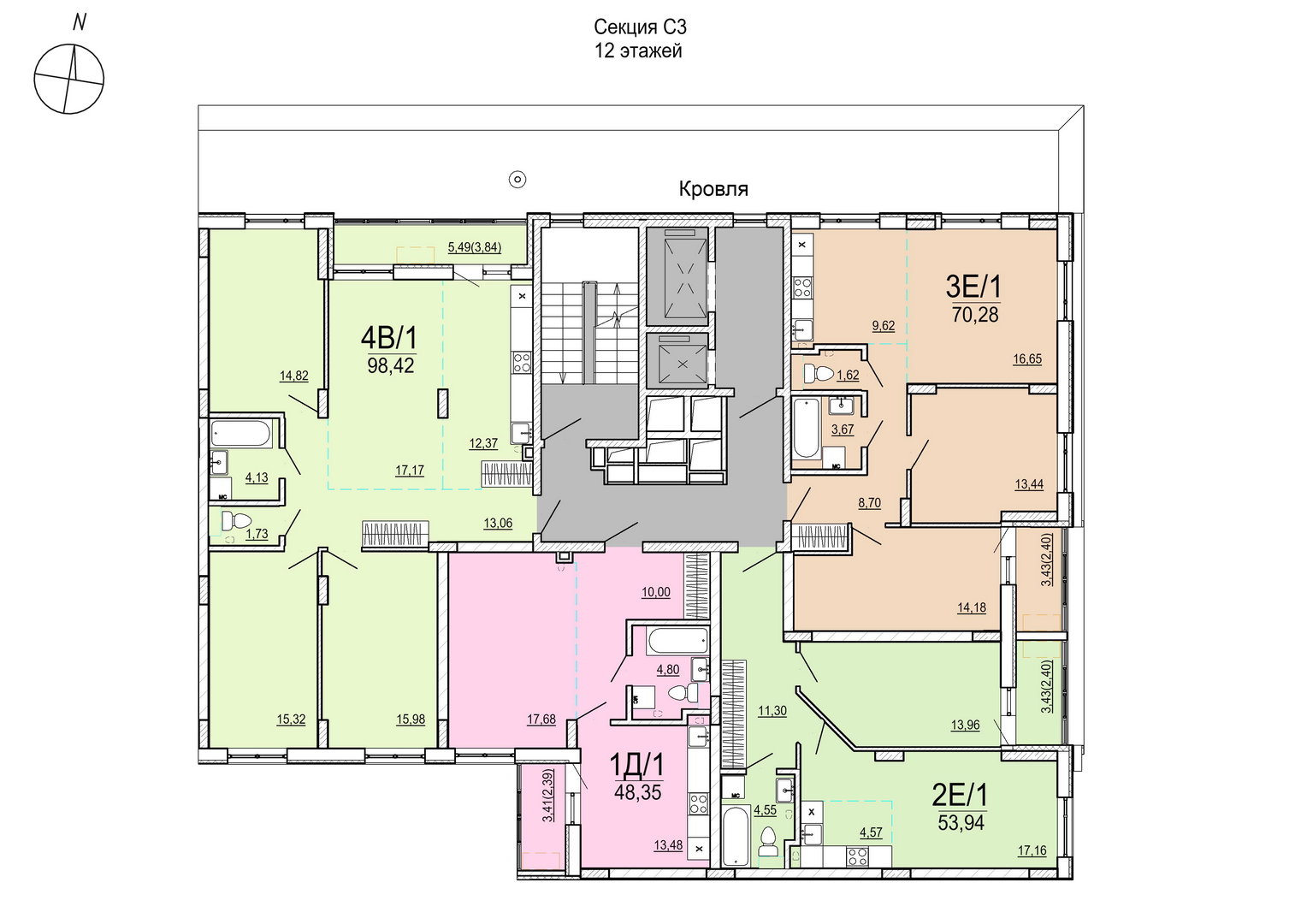
План 11-12-го этажа

План 11-12-го этажа

Секция 1
Секция 2
Секция 3

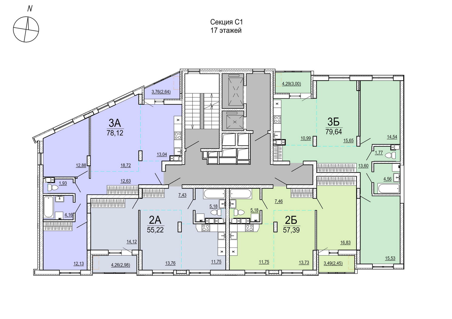
План 13-14-го этажа

План 13-14-го этажа

Секция 1

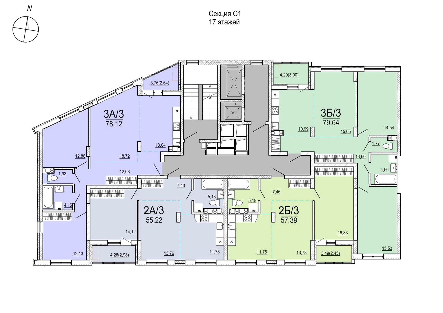
План 15-16-го этажа

План 15-16-го этажа

Секция 1

План 17-го этажа

План 17-го этажа

Секция 1

Квартиры

КОЛИЧЕСТВО КОМНАТ
СТОИМОСТЬ КВАДРАТНОГО МЕТРА
-
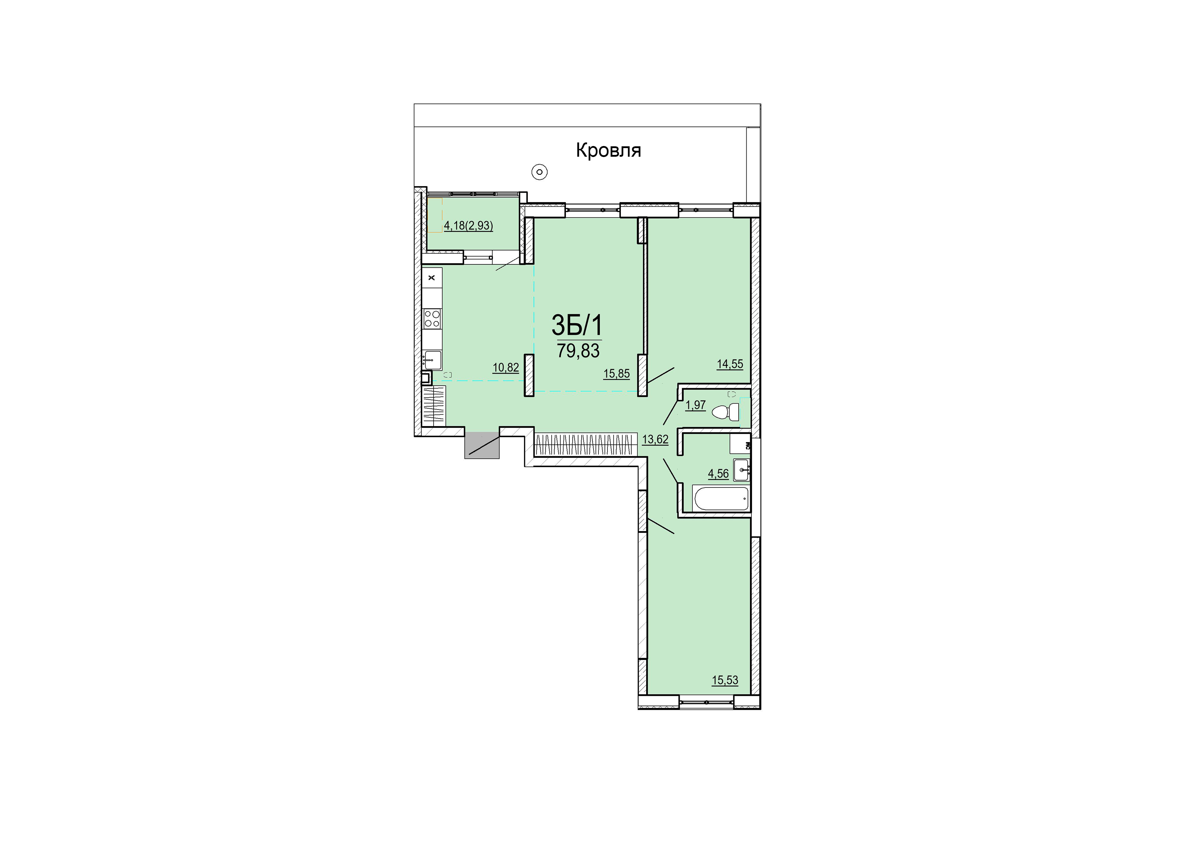
Планировка
Комнат
Секция
Этаж
Площадь
Стоимость м²*
Общая стоимость*
Валюта договора
При валюте договора USD: Оплата за недвижимость производится в белорусских рублях по курсу Национального банка Республики Беларусь исходя из стоимости на день оплаты/зачисления денежных средств на счёт Застройщика.
При валюте договора BYN: Оплата за недвижимость устанавливается и производится в белорусских рублях.

Ход строительства

Паркинг

Паркинг Айрон
В близости от домов мы возводим плоскостные наземные паркинги, чтобы освободить дворы от автомобилей.
№ паркинга
Площадь
100% оплата, м²
Октябрьской Революции ул., стоянка 1.5 и 1.12 по ГП, г.Брест
USD/м²
Октябрьской Революции ул., стоянки 2.5, 2.6, 2.9, 2.10 по ГП г.Брест
USD/м²

ЖК "Чайка" (г. Брест)

-

Поделиться