Многоуровневая гараж-стоянка ул. Разинская, 5

Генеральный план

Статус объекта: Построен

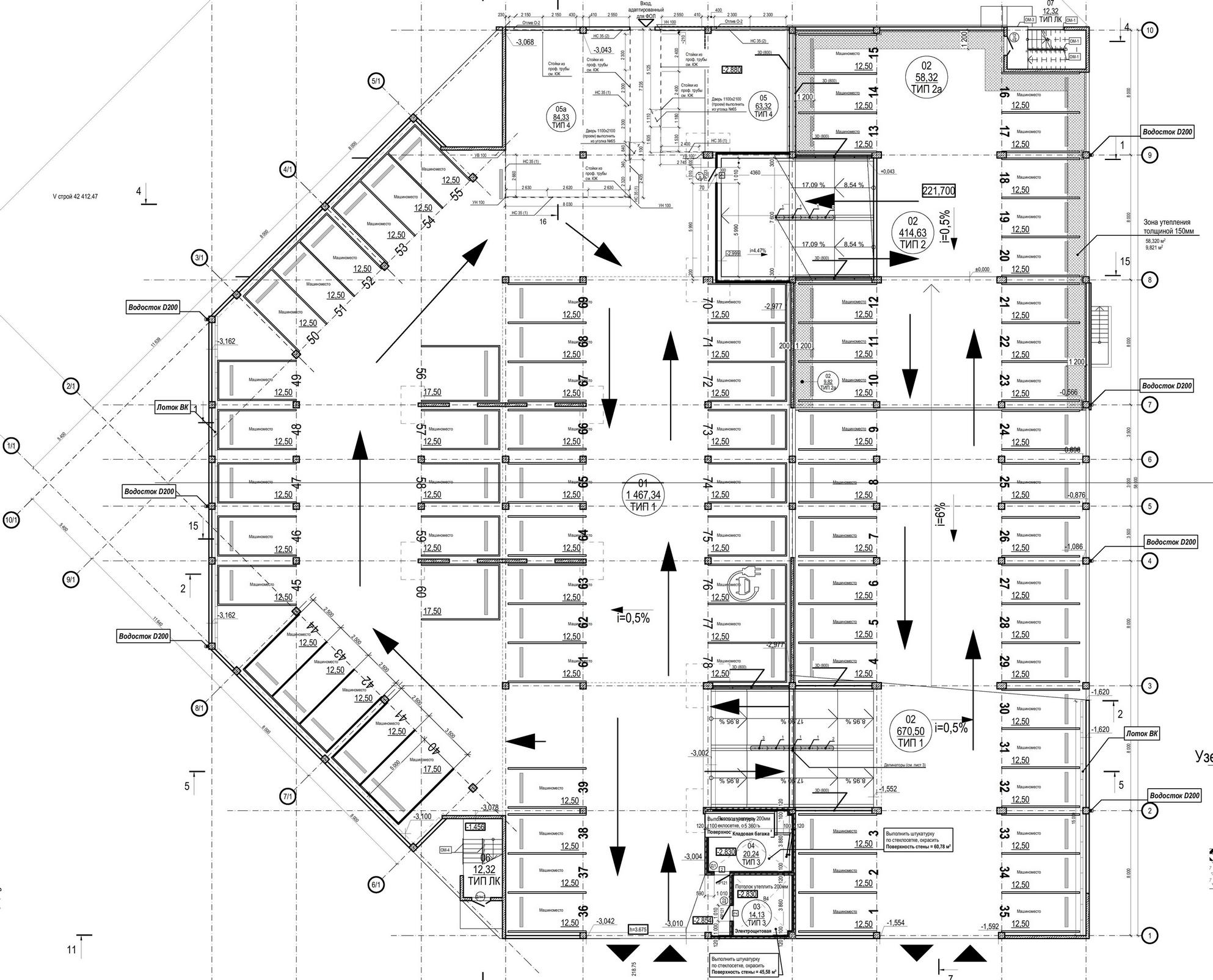
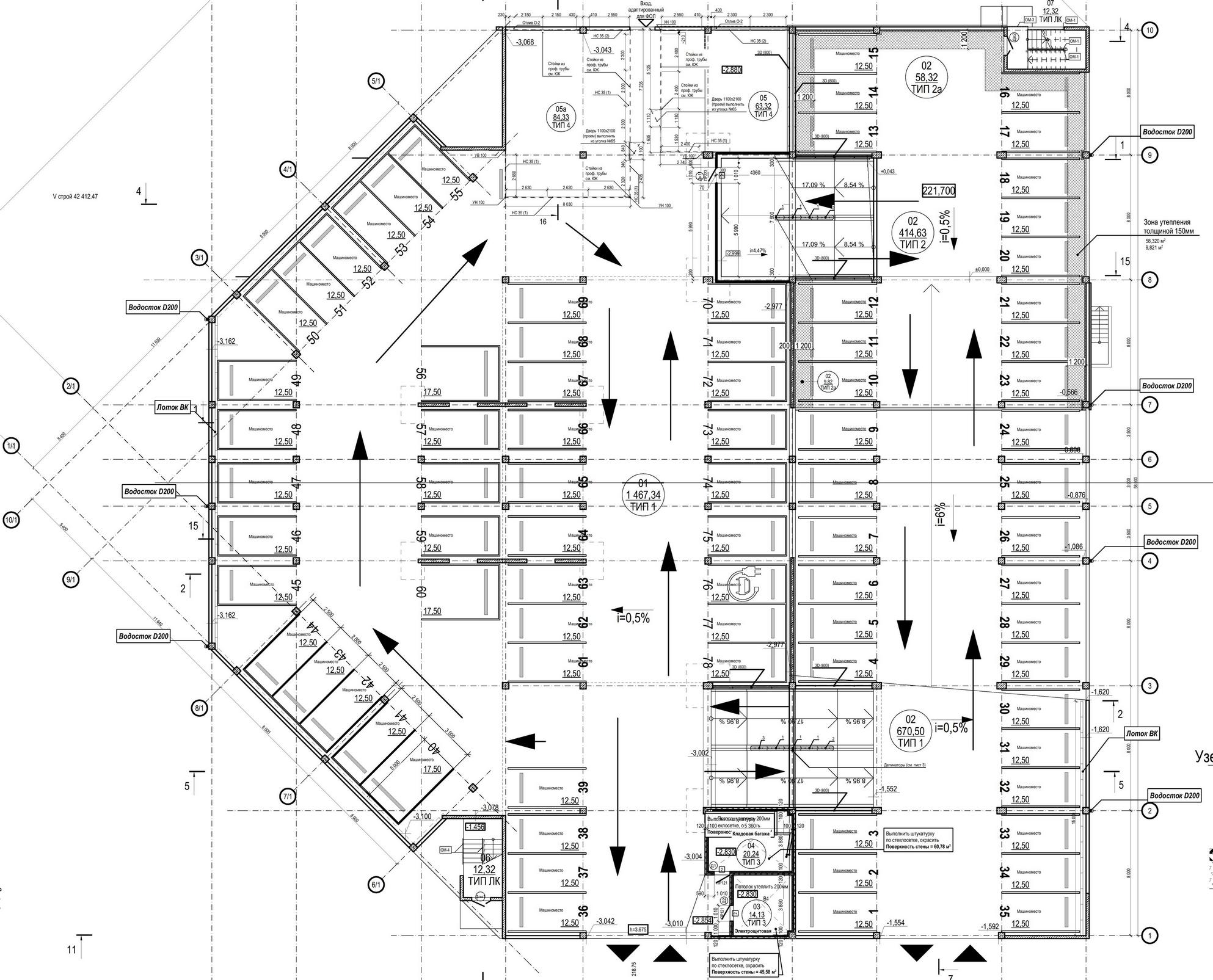
В продажу предлагаются машино-места №№ 1-35 на 1 этаже 

Стоимость 1 машино-места сумма в белорусских рублях эквивалентная 4 500 долларам США

Возможно оплата в беспроцентную рассрочку до 12 месяцев

Оплата белорусскими рублями по курсу Национального Банка Республики Беларусь на день зачисления на расчетный счет Продавца

Информация об объекте

  • Начало строительства: 2022 год
  • Окончание строительства: 2023год
  • Конструкция: плоскостная стоянка
Таблица
Кол-во комнат м² Тип Стоимость за 1м²* Стоимость за 1м²* (в рассрочку) Примечание

* - При валюте договора USD: Оплата за недвижимость производится в белорусских рублях по курсу Национального банка Республики Беларусь исходя из стоимости на день оплаты/зачисления денежных средств на счёт Застройщика.

* - При валюте договора BYN: Оплата за недвижимость устанавливается и производится в белорусских рублях.

Планы этажей

Этаж 1

Показать планировки